Industrial Space 1,410 sqm with Refrigeration and Freezing Freidorf Industrial Park, Timișoara
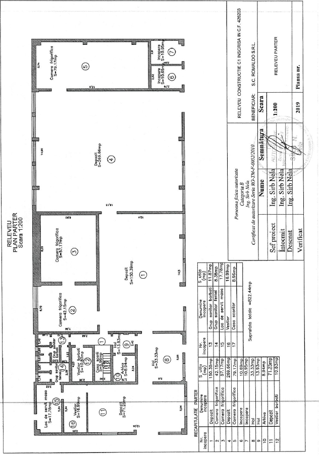
1,410 sqm industrial unit with 297 sqm refrigeration, 47 sqm freezing, 838 sqm storage and 229 sqm offices, 4 loading gates and truck access.
Rent
Industrial Space 1,410 sqm with Refrigeration & Freezing
Fully equipped industrial facility located in Freidorf Industrial Park, Timișoara, designed for temperature-controlled storage and logistics operations.
The property includes refrigeration and freezing chambers, warehouse areas and administrative offices developed over two levels.
LOCATION
Freidorf Industrial Park – Timișoara
Direct access from Timișoara South Ring Road
Fast connection to highway and main city arteries
Located near ring road roundabout access
Suitable for regional logistics distribution
TECHNICAL SPECIFICATIONS
Total usable area: 1,410 sqm
Building C1
Offices G+1: 228.71 sqm (~229 sqm)
Refrigerated storage: 178.49 sqm
Warehouse storage: 512.5 sqm
Building C3
Ground floor: 254.25 sqm, including:
– Freezing: 47.12 sqm (~47 sqm)
– Refrigeration: 118.51 sqm
– Other spaces: 88.62 sqm
Upper floor (storage & admin): 236.74 sqm
Functional distribution:
Offices: 229 sqm
Refrigeration areas: 297 sqm
Freezing area: 47 sqm
Storage areas: 838 sqm
FACILITIES
Full utilities:
– Three-phase power
– Water
– Sewerage
Truck access
4 loading/unloading gates
On-site parking
Project status Existing
GBA existing 1,410 m²
Loading capacity 3 t/m²
- Loading dock
- Drive-in door
- LED lightning
- Ambiental Controlled Temperature
Other offers from Vest
Available offers: 69
Buzias , Vest
Calea Buziasului , Vest
Strada Aurel Crisan , Vest
Strada Silvana , Vest
Strada Voinicilor, Micalaca , Vest
Strada Sulina , Vest
Calea Lugojului , Vest
Sanandrei , Vest
Calea Lugojului , Lugoj
Airport Area Lugoj , Lugoj
Uberland St. , Vest
Calea Timisorii 139 , Vest
Calea Timisorii , Vest
Nicoresti St., Timisoara , Vest
Calea Sagului, 215 , Vest
Str. Cornelia Bodea , Vest
DN59, Sag , Vest
Calea Aurel Vlaicu , Vest
Uzinelor Street , Vest
Dambovitei Street , Vest
industrial-space-rent-eli-park-oradea , Vest
Calea Sagului , Vest
Anghel I. Saligny Str. , Vest
DN59 (Calea Sagului) , Vest
Calea Chisodei , Vest
Calea Sagului , Vest
Calea Sagului , Vest
DJ691, Giarmata , Vest
Timisoara , Vest
Strada Ogorului , Vest
Ovidiului Street / DN7 , Vest
10 Bodrogului road , Vest
Ring Road, Dumbravita , Vest
DN692 , Vest
DN7E , Vest
E671, Arad , Vest
Calea Timisoarei FN , Vest
Calea Sagului, nr.233 , Vest
Nicolaus Lenau Street, no.11 , Vest
IV Zona Industriala Arad Vest Street , Vest
Campurilor Street , Vest
Uzinelor Street , Vest
Ogorului street, Oradea,Bihor county , Vest
Calea Borsului , Vest
DJ691 KM8+410m, Giarmata , Vest
DN6 / E70, Ghiroda Area , Vest
Cornelia Bodea Street , Vest
DJ691, Giarmata Area , Vest
Ring Road , Vest
7 Ovidiu Street , Vest
28B Calea Borsului , Vest
443B Utvin Village , Vest
Calea Borsului , Vest
21 Ovidiu Cotrus Street , Vest
DN 69 (km 10), Sanandrei Area , Vest
DN 59 (km 8), Calea Sagului , Vest
DJ691 (km 3), Giarmata Area , Vest
DJ691 (km 3), Giarmata Area , Vest
235 Calea Sagului , Vest
DN6 (km 637), Remetea Mare , Vest
Aviatorilor Street , Vest
DN6 (km 547), Remetea Mare , Vest
DN6 (km 636), Remetea Mare , Vest
107 Calea Lugojului , Vest
DN79 , Salonta
DN66 , Deva
17 Depozitelor Street , Deva
DJ682 , Vest
Are you a tenant?
Contact us and you will receive a free consultation regarding:
- existing market conditions
- renegotiation of contractual terms
- relocation options
Are you an owner?
Contact us if you want to be present in the most advanced online platform dedicated to renting/selling offices
Contact us










































.jpg)






























