Spațiu industrial de inchiriat 1.410 mp cu refrigerare și congelare Timisoara
Spațiu industrial modern, cu suprafață utilă totală de 1.410 mp, situat în Parcul Industrial Freidorf – Timișoara. Proprietatea include camere de refrigerare, congelare, spații de depozitare și birouri P+1E, fiind potrivită pentru activități logistice și alimentare.
Inchiriere
Spațiu industrial 1.410 mp cu refrigerare și congelare – Parcul Industrial Freidorf, Timișoara
Spațiu industrial complet echipat, situat în Parcul Industrial Freidorf din Timișoara, proiectat pentru activități de depozitare, distribuție și procesare produse alimentare sau non-alimentare care necesită control de temperatură.
Proprietatea include camere de refrigerare și congelare, spații generoase de depozitare și birouri administrative dezvoltate pe două niveluri.
LOCALIZARE
Timișoara – Parcul Industrial Freidorf
Acces facil din Șoseaua de Centură Timișoara Sud, cu descărcare directă în parcul industrial
Conexiune rapidă cu autostrada și principalele artere ale orașului
Poziționare în apropierea sensului giratoriu de descărcare din centură
Acces optim pentru trafic greu și distribuție regională
SPECIFICAȚII TEHNICE
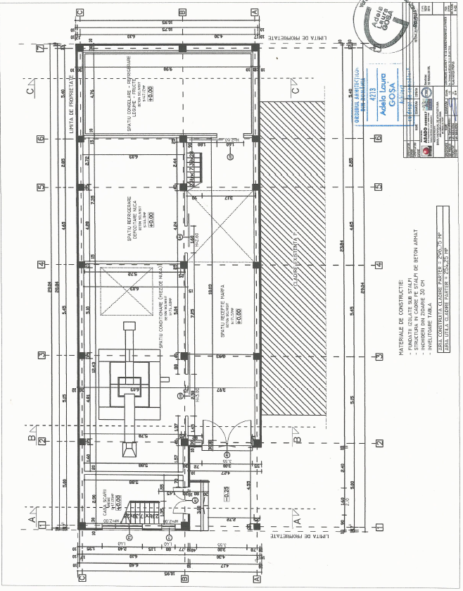
Suprafață utilă totală: 1.410 mp
C1 – Corp principal
Birouri P+1E: 228,71 mp (~229 mp)
Depozite refrigerare: 178,49 mp
Spații depozitare: 512,5 mp
C3 – Corp secundar
Parter total: 254,25 mp, compus din:
– Congelare: 47,12 mp (~47 mp)
– Refrigerare: 118,51 mp
– Alte spații: 88,62 mp
Etaj depozitare și administrativ: 236,74 mp
Distribuție funcțională totală:
Birouri P+1E: 229 mp
Spații refrigerare: 297 mp
Spațiu congelare: 47 mp
Spații depozitare: 838 mp
DOTĂRI
Utilități complete:
– Curent trifazic
– Apă
– Canalizare
Acces TIR
4 porți de încărcare / descărcare
Locuri de parcare suficiente în curte
AVANTAJE
Spațiu industrial cu temperatură controlată
Compartimentare funcțională pentru flux logistic
Acces direct din centură
Conexiune rapidă la autostradă
Potrivit pentru distribuție alimentară sau logistică frigorifică
Platformă generoasă pentru camioane
Stadiu proiect Cladire finalizata
Suprafață existentă 1,410 m²
Sarcină încărcare 3 t/m²
- Rampa incarcare
- Usi drive-in
- Iluminare LED
Alte oferte din Vest
Oferte disponibile: 65
Strada Aurel Crisan , Vest
Strada Silvana , Vest
Strada Voinicilor, Micalaca , Vest
Strada Sulina , Vest
Calea Lugojului , Vest
Calea Lugojului , Lugoj
Zona Lugojului , Lugoj
Aleea Uberland , Vest
Calea Timisorii 139 , Vest
Strada Timișorii 139 , Vest
Strada Nicoresti, Timisoara , Vest
DJ 692, Sânandrei , Vest
Calea Sagului, 215 , Vest
Str. Cornelia Bodea , Vest
DN59, Sag , Vest
Calea Aurel Vlaicu , Vest
Str. Uzinelor , Vest
Str. Dambovitei , Vest
Calea Sagului , Vest
Str. Anghel I. Saligny , Vest
DN59 (Calea Sagului), Chisoda , Vest
Calea Chisodei , Vest
Calea Sagului , Vest
Calea Sagului , Vest
Timisoara , Vest
Strada Ogorului , Vest
Str. Ovidiului / DN7 , Vest
Calea Bodrogului 10 , Vest
Soseaua de centura, Dumbravita , Vest
DJ692 , Vest
E671, Arad , Vest
Calea Timisoarei FN , Vest
Calea Sagului, nr.233 , Vest
Strada Nicolaus Lenau, nr.11 , Vest
Str. IV Zona Industriala Arad Vest , Vest
Strada Campurilor , Vest
Strada Uzinelor , Vest
Strada Ogorului , Vest
Calea Borsului , Oradea , Vest
DJ691 KM 8+410m, Giarmata , Vest
DN6 / E70, Zona Ghiroda , Vest
DJ691, Zona Giarmata , Vest
Sos. de Centura , Vest
Str. Ovidiu 7 , Vest
Calea Borsului 28B , Vest
Satul Utvin 433B , Vest
Calea Borsului , Vest
Str. Ovidiu Cotrus 21 , Vest
DN 69 (km 10), Zona Sanandrei , Vest
DN 59 (km 8), Calea Sagului , Vest
DJ691 (km 3), Zona Giarmata , Vest
DJ691 (km 3), Zona Giarmata , Vest
Calea Sagului 235 , Vest
DN6 (km 637), Remetea Mare , Vest
Str. Aviatorilor , Vest
DN6 (km 547), Remetea Mare , Vest
DN 6 (km 636), Remetea Mare , Vest
Calea Lugojului 107 , Vest
DN79 , Salonta
DN66 , Deva
Str. Depozitelor 17 , Deva
Ești chiriaș?
Contactează-ne și vei primi consultanță gratuită cu privire la:
- condițiile existente în piață
- renegociere termeni contractuali
- opțiuni de relocare
Ești proprietar?
Contactează-ne dacă vrei să fii prezent în cea mai avansată platformă online dedicată închirierii/vânzării de spatii industriale
Contactează-ne






































.jpg)






























